Schulraum Bützi
Schulraum Bützi Egg, Zürich
Offener Projektwettbewerb, 1. Preis
2022
Gemeinde Egg
Schulraumerweiterung, Mehrzwecksaal, Doppelturnhalle B und Musikschule
4'414 m2
24’884 m3
2’676 m2
k.A.
Alessandro Capetti, Francesco Mannarino
Cédric Bär, Alessandro Capetti, Mariana Cabrita Ferreira
Synaxis AG
METTLER Landschaftsarchitektur AG
Gartenmann Engineering AG
notari images
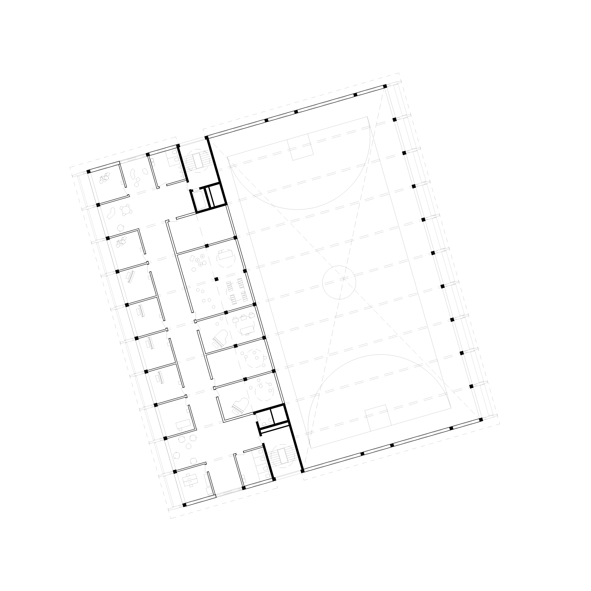
Für die seit Jahren wachsende Bevölkerung der attraktiven Wohn- und Arbeitsgemeinde Egg, zwischen Greifensee und Pfannenstil gelegen, wurde eine Gesamtstrategie zur Erneuerung und Erweiterung der aktuellen Schulinfrastruktur entwickelt. Diese Strategie sieht u.a. eine etappenweise Entwicklung der Schulanlage Bützi vor, welche in der nächsten Dekade an die wachsenden quantitativen Bedürfnisse und qualitativen Ansprüche an eine zeitgenössischen Schulinfrastruktur angepasst werden soll. Die Schulanlage Bützi befindet sich in leichter Hanglage, zwischen den Dorfteilen Oberdorf und Hinteregg und übernimmt für die Bevölkerung auch übergeordnete Funktionen als Sport- und Freizeitinfrastruktur im öffentlichen Gemeindeleben. Die städtebauliche Strategie der Gesamterneuerung basiert nebst einer quantitativen und qualitativen Anpassung für die Ausbildungs- und Sportinfrastruktur auch auf einer deutlichen Verbesserung der Adressierung der Gesamtanlage im Siedlungs- und Landschaftskörper von Egg und deren aktive Vernetzung und Einbindung in das gemeinschaftliche Angebot an Infrastruktur für alle BewohnerInnen der Gemeinde. Dabei soll der Ort als wachsende Identität sensibel weiterentwickelt und gestärkt werden und die Transformationen und Neubauten der Anlage sich in den immer noch mehrheitlich ländlichen Charakter der Siedlungs- und Landschaftsstruktur des Gemeindegebietes Egg einbinden. Die Schulanlage Bützi zeichnet sich durch ihre grosszügigen Freiflächen, ihren umfangreichen, locker gestreuten Baubestand sowie die geschickte Verflechtung der prägnanten Bestandteile der Anlage, wie das Biotop, die Sitzstufen, der Allwetterplatz und die Sportwiese, die das Erscheinungsbild der Gesamtanlage prägen, aus. Weiterhin soll die fussläufige Erschliessung sowie die Quartiervernetzung erhalten bleiben. Die Freiraumgestaltung der Schule orientiert sich an diesen Gegebenheiten und bindet den besonderen Charakter in das Konzept mit ein. Der erste Baustein der Schulraumentwicklung Bützi bildet das neue Mehrzweckgebäude, welches Tagesstrukturen, Kindergartenräume, einen Mehrzweckraum, Räume für die Musikschule und eine Doppelturnhalle beinhaltet. Durch die in zwei Teile gegliederte Gebäudefigur wird die Massstäblichkeit wieder auf den unmittelbaren Kontext gebrochen und an die in die landschaftliche Umgebung eingegliederte Formensprache der Schulgebäude aus der Nachkriegszeit angepasst. Durch die gezielte Positionierung des Neubaukörpers entsteht in Zusammenspiel mit den bestehenden Bauten und den Freianlagen ein stimmiges Ensemble. Gleichzeitig wird die heutige Anlage in eindeutige Räume aufgeteilt.








